Projekt Konstruktion

Strohti - Wochenendhaus

natural architecture technologies
4. Regelsemester
Sommersemester 2024

Prof.in Dipl. -Arch. ETH Stephanie Stratmann
Prof. Dipl. -Ing. Manfred Lux
Prof.in Dr. -Ing. Susanne Schwickert
Prof. Dipl. -Ing. Jens-Uwe Schulz

In Zusammenarbeit mit: Luisa Strunk

Der Entwurf entwickelt ein nachhaltiges Wochenendhaus, bei dem eine möglichst positive Ökobilanz im Mittelpunkt steht. Ziel ist es, durch den Einsatz nachwachsender und ressourcenschonender Materialien eine einfache und materialeffiziente Bauweise zu
schaffen, die konstruktiv und räumlich auf das Wesentliche reduziert ist.

Als zentraler Baustoff kommt Stroh in Form gepresster Ballen zum Einsatz. Diese werden in eine Holzständerkonstruktion integriert und bilden eine robuste sowie ökologisch vorteilhafte Gebäudehülle. Die Wahl des Materials basiert auf einer vergleichenden Untersuchung verschiedener Baustoffe hinsichtlich ihrer energetischen Eigenschaften und ihrer Ökobilanz. Dabei wurden unter anderem Lehm, Stroh, Vollholz und Recyclingmaterialien analysiert und miteinander bewertet.

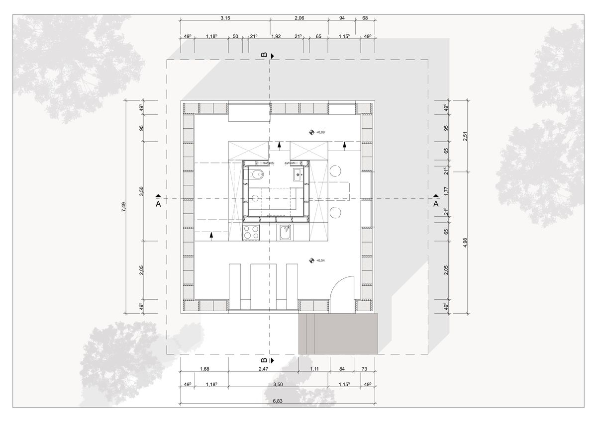
Der Grundriss organisiert sich um einen kompakten Kern, der das Bad sowie sämtliche
technischen Installationen aufnimmt und auch die Küchenanschlüsse bündelt. Diese
Konzentration der Technik reduziert Eingriffe in die Gebäudehülle und minimiert den
Zuschnitt der Strohballen. Multifunktionale Möbel und die Nutzung der tiefen
Fensterlaibungen als Sitznischen schaffen zusätzliche Aufenthaltsqualitäten und
ermöglichen eine flexible Nutzung des kompakten Innenraums.

Translate »